Monte-charges accessibles mais non accompagnés - BKG France - 300 kg - moteur haut/bas - modèles 300.15/43 et 300.15/45
Obtenir un devis / prix
Prix et détails sur demande
Vendu
et fabriqué par BKG FRANCE
En savoir plus
Description
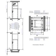
MONTE-CHARGES ACCESSIBLES MAIS NON ACCOMPAGNÉS - CAPACITÉ DE 300 KG
Moteur en haut dans la gaine :
- Type : 300.15/43 (300 kg)
- Pylône : Pylône en acier galvanisé, pour installation dans une gaine par le commettant.
- Porte-palières : Porte-battantes à un vantail DIN 18090, au ras de sol, en tôle électro-zinguée, prêtes pour peinture.
- Cabine : Tôle électro-zinguée, prête pour peinture, avec parachute à galets, barre diagonale et plinthes de protection.
- Treuil : Transmission par vis sans fin avec roues dentées, équipé d'un frein de secours et volant, positionné au-dessus de la gaine.
- Commande : Commande à micro-processeur, pré-câblée pour un montage simple et raccordée par un système enfichable.
- Porte-machinerie : Porte-battante à un vantail, en tôle électro-zinguée, prête pour finition peinture, avec serrure à loquet verrouillable.
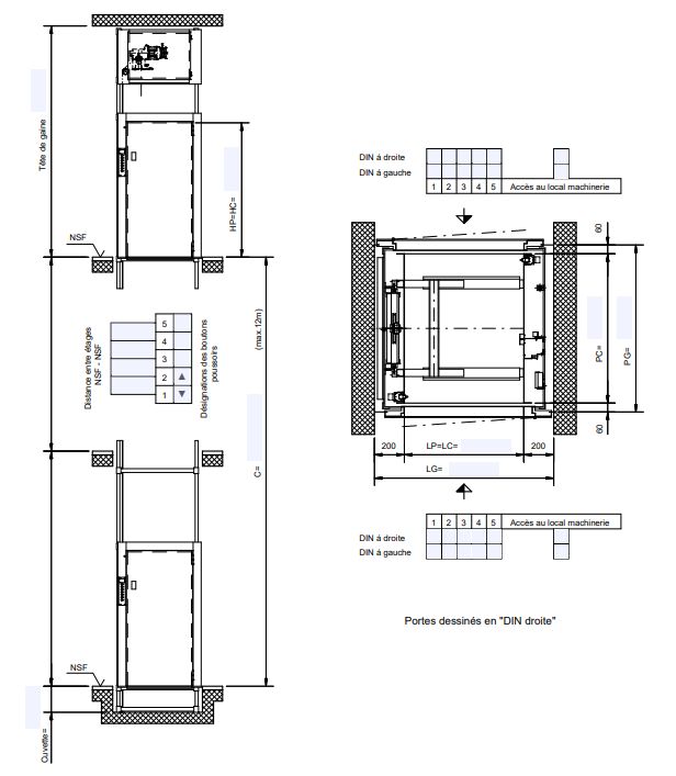
Moteur en bas à côté de la gaine :
- Type : 300.15/45 (300 kg)
- Pylône : Pylône en acier galvanisé, pour installation dans une gaine par le commettant.
- Porte-palières : Porte-battantes à un vantail DIN 18090, au ras de sol, en tôle électro-zinguée, prêtes pour peinture.
- Cabine : Tôle électro-zinguée, prête pour peinture, avec parachute à galets, éclairage de cabine et prise de courant protégée sur le plafond de la cabine.
- Treuil : Transmission par vis sans fin avec tambour à câbles, équipé d'un frein de secours et volant.
- Commande : Commande à micro-processeur, pré-câblée pour un montage simple et raccordée par un système enfichable.
- Porte-machinerie : Par le commettant.
Caractéristiques techniques communes :
Capacité : 300 kg
Suspension : 1:1 ou 2:1 selon le modèle
Matériaux cabine : Tôle électro-zinguée, prête pour peinture
Sécurité : Parachute à galets, limiteur de vitesse
Moteur : Transmission par vis sans fin, protection IP 20
Vitesse : 0,15 m/s (type 300.15/43), 0,18 m/s (type 300.15/45)
Puissance moteur : 2,00 kW (300.15/43), 3,00 kW (300.15/45)
Électrotechnique :
- Interrupteur principal tripolaire à clé
- Relais de protection de phase
- Surveillance de temps de parcours
- Signal d'arrivée, blocage de départ
- Niveau de stationnement (libre éligible)
- Tension de manœuvre : 24V AC
- Système diagnostic
- Indicateur de position, appel entendu
- Indicateur d'occupé, indicateur de panne
- Interrupteur d'appel et d'envoi, interrupteur des transmetteurs d'ordres
- Tableau à boutons-poussoirs avec code pour usagers limités
Moteur en haut dans la gaine :
- Type : 300.15/43 (300 kg)
- Pylône : Pylône en acier galvanisé, pour installation dans une gaine par le commettant.
- Porte-palières : Porte-battantes à un vantail DIN 18090, au ras de sol, en tôle électro-zinguée, prêtes pour peinture.
- Cabine : Tôle électro-zinguée, prête pour peinture, avec parachute à galets, barre diagonale et plinthes de protection.
- Treuil : Transmission par vis sans fin avec roues dentées, équipé d'un frein de secours et volant, positionné au-dessus de la gaine.
- Commande : Commande à micro-processeur, pré-câblée pour un montage simple et raccordée par un système enfichable.
- Porte-machinerie : Porte-battante à un vantail, en tôle électro-zinguée, prête pour finition peinture, avec serrure à loquet verrouillable.
Moteur en bas à côté de la gaine :
- Type : 300.15/45 (300 kg)
- Pylône : Pylône en acier galvanisé, pour installation dans une gaine par le commettant.
- Porte-palières : Porte-battantes à un vantail DIN 18090, au ras de sol, en tôle électro-zinguée, prêtes pour peinture.
- Cabine : Tôle électro-zinguée, prête pour peinture, avec parachute à galets, éclairage de cabine et prise de courant protégée sur le plafond de la cabine.
- Treuil : Transmission par vis sans fin avec tambour à câbles, équipé d'un frein de secours et volant.
- Commande : Commande à micro-processeur, pré-câblée pour un montage simple et raccordée par un système enfichable.
- Porte-machinerie : Par le commettant.
Caractéristiques techniques communes :
Capacité : 300 kg
Suspension : 1:1 ou 2:1 selon le modèle
Matériaux cabine : Tôle électro-zinguée, prête pour peinture
Sécurité : Parachute à galets, limiteur de vitesse
Moteur : Transmission par vis sans fin, protection IP 20
Vitesse : 0,15 m/s (type 300.15/43), 0,18 m/s (type 300.15/45)
Puissance moteur : 2,00 kW (300.15/43), 3,00 kW (300.15/45)
Électrotechnique :
- Interrupteur principal tripolaire à clé
- Relais de protection de phase
- Surveillance de temps de parcours
- Signal d'arrivée, blocage de départ
- Niveau de stationnement (libre éligible)
- Tension de manœuvre : 24V AC
- Système diagnostic
- Indicateur de position, appel entendu
- Indicateur d'occupé, indicateur de panne
- Interrupteur d'appel et d'envoi, interrupteur des transmetteurs d'ordres
- Tableau à boutons-poussoirs avec code pour usagers limités
Autres produits du vendeur pour : Monte-charge

Voir le produit

Voir le produit
Produits similaires dans la catégorie qui peuvent vous intéresser

Prix sur demande
Vendu et fabriqué par : CMC MONTE CHARGES
BKG 300.15/47 F Monte - charge palette - EURO PALETTES Ce monte - charge est unique, il est conçu essentiellement pour accueillir des palettes européennes (Largeur 800 x Profondeur 1200 mm). - MOTEUR EN HAUT DANS LA GAINE : - TYPE 300.15/47 F (300 Kg) - ** Pylône ** - Prolongement du pylôn
Voir le produit

Prix sur demande
Vendu et fabriqué par : BKG FRANCE
MONTE - CHARGES ACCESSIBLES DE 500 KG, PYLÔNE NON AUTOPORTEUR - MOTEUR EN HAUT DANS LA GAINE : - Type 500.15/44 (500 Kg) - MOTEUR EN BAS À CÔTÉ DE LA GAINE : - Type 500.15/46 (500 Kg) - Pylône : - Pylône en acier galvanisé à chaud, pour installation dans une gaine par le maître d'ouvr
Voir le produit

Prix sur demande
Vendu et fabriqué par : BKG FRANCE
MONTE - CHARGES AVEC ACCOMPAGNEMENT DE 1000 KG, PYLÔNE AUTOPORTEUR - Moteur en haut dans la gaine : - Type 1000.15/50 P (1000 Kg) - Moteur en bas à côté de la gaine : - Type 1000.10/60 P (1000 Kg) - Pylône : - Pylône en acier galvanisé, pylône autoportant. - Guides en T 82 B. - Le py
Voir le produit

Prix sur demande
Vendu et fabriqué par : BKG FRANCE
Petit monte - charge 5 Kg / 20 Kg Tous nos monte - plats et monte - charges disposent d'une qualité qui n'est plus à prouver. Ils bénéficient tous d'une fabrication sur mesure et d'un délai de livraison de 4 à 5 semaines. Chaque métier et chaque secteur d'activité disposent de besoins spéci
Voir le produit

Prix sur demande
Vendu et fabriqué par : BKG FRANCE
MONTE - CHARGES ACCESSIBLES DE 500 KG, PYLÔNE AUTOPORTEUR - Moteur en haut dans la gaine : - Type 500.10/49 (500 Kg) - Moteur en bas à côté de la gaine : - Type 500.15/59 (500 Kg) - Pylône - Pylône en acier galvanisé à chaud, pour installation dans une gaine par le commettant (la gaine
Voir le produit

Prix sur demande
Vendu et fabriqué par : 3MC
### MONTE - CHARGE - Le monte - charge vous simplifie le transport de charge, simple d'utilisation et très utile dans vos tâches quotidiennes. - ### PLUS DE PROBLÈME POUR DÉPLACER DES CHARGES - Nous vous proposons quatre types de monte - charge différents selon vos besoins : - De 3 KG à 50
Voir le produit


Prix sur demande
Vendu par : ARATAL ATTRACTIVE MOBILITY
Vendeur certifié
Robuste et simple d’utilisation, le monte - charge non accompagné répond à la plupart des besoins pour le transport de marchandises : activités industrielles ou tertiaires, usines et entrepôts, hôtellerie, magasins, ateliers … - Caractéristiques principales : - Une gamme de charge utile
Voir le produit
Obtenez des devis
pour plusieurs produits à la fois
1
Vous décrivez rapidement votre besoin de matériel
2
Nous sélectionnons les meilleurs fournisseurs pour votre projet
3
Vous recevez des premières propositions sous 48h
Quel type de monte-charge recherchez-vous ?
BKG FRANCE
France, VENASQUE, (84) Provence-Alpes-Côte-d'Azur
bkg france est une entreprise spécialisée dans la fourniture, l'installation et la maintenance de monte-charges et monte-plats. avec plus de 20 ans d'expérience, bkg france propose des produits de qualité allemande et un service de proximité français. l'entreprise offre une solution clé en main incluant le transport, l'installation, la mise en service, le démontage, le s.a.v. et la modernisation des appareils. bkg france se distingue par sa réactivité, avec des devis personnalisés en moins de 3 heures et des pièces détachées envoyées en moins de 24 heures. la société ne fait aucune sous-traitance et dispose de sa propre flotte de véhicules et d'équipes de montage. bkg france cible principalement une clientèle professionnelle à travers toute la france et propose des monte-charges uniquement électriques avec des capacités de charge allant de 5 kg à 2000 kg.
Retrouvez nos conseils pour choisir
votre
monte-charge

Le conseil de l'expert
Comment choisir un monte-charge ?
Découvrir

Top 5 des produits dans la catégorie


Prix sur demande
Vendu et fabriqué par : EdmoLift Solutions
Le monte - charge d?EdmoLift est utilisé pour gérer les charges lourdes entre deux ou plusieurs étages. Grâce à une construction robuste, la hauteur de levage peut atteindre jusqu?à 12 mètres et il n?est pas nécessaire d'installer le monte - charge dans une fosse. - Le monte - charge peut Ã
Voir le produit


Prix sur demande
Vendu et fabriqué par : DWS
Vendeur certifié
Description - L'accessibilité et la circulation en toute sécurité, large gamme dans le domaine de l'élévation. - Ouverture des trappes par un berceau implanté sur le plateau. - Capacité : 200 Kg à 1200 Kg de charge utile - Hauteur de lévée : Jusqu'à 6.5 m - Vitesse de levée : 8 à 1
Voir le produit

Prix sur demande
Vendu et fabriqué par : HAMON
MONTE - CHARGES EN KIT - MONTE - CHARGES EN KIT 150KG - 300KG - Notre gamme de monte - charges en kit 150/300 kg, conforme à la directive machine 2006/42 CE, est idéalement conçue pour les petites charges (Bacs, Cartons, Petites palettes, Rolls...). - Nos monte - charges en kit sont livrés a
Voir le produit


Prix sur demande
Vendu et fabriqué par : DWS
Vendeur certifié
Description - L'accessibilité et la circulation en toute sécurité, large gamme dans le domaine de l'élévation. - Cage grillagée en maille 80 x 10 avec peinture epoxy. - Porte rapide en partie basse avec commande par boite à boutons et portillon en partie haute. - EUP type EC 03 - Charge
Voir le produit

Prix sur demande
Vendu et fabriqué par : HAMON
MONTE - CHARGES 150KG - 300KG - Notre gamme de monte - charges industriels 150kg / 300kg est spécialement conçue pour la manutention de charges légères (cartons, colis, palettes). Ils permettent de répondre aux problématiques de transport vertical de charges avec changement de niveaux. - Di
Voir le produit