Monte-charges types 300.15/43F & 300.15/45F - CMC monte charges - Charge max 300 kg - Élévateurs avec pylône galvanisé
Obtenir un devis / prix
Prix et détails sur demande
Vendu
et fabriqué par CMC MONTE CHARGES
En savoir plus
Description
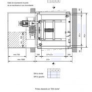
Types 300.15/43F - 300.15/45F Monte-charges
MOTEUR EN HAUT DANS LA GAINE : TYPE 300.15/43F
- Pylône : Pylône en acier galvanisé, pour installation dans une gaine par le commettant.
- Porte-palières : Porte-battantes à un vantail DIN 18090, au ras de sol, tôle électro-zinguée, prêtes pour peinture.
- Cabine : Cabine insérée, tôle électro-zinguée, prête pour peinture, avec parachute à galets, barre diagonale et plinthes de protection.
- Treuil : Transmission par vis sans fin avec roues dentées, équipé d'un frein de secours et volant, positionné au-dessus de la gaine.
- Commande : Commande à micro-processeur exécutée comme commande d'appel et d'envoi. Installation électrique pré-câblée pour un montage simple et raccordée ensemble par un système enfichable.
- Porte-machinerie : Porte-battante à un vantail, tôle électro-zinguée, prête pour finition peinture, avec serrure à loquet, verrouillable.
BKG Type : 300.15/43F
Pylône | Prolongement du pylône galvanisé, guide en T 50/50/5. Le pylône est à considérer comme support ; toutes les contraintes de l'élévateur doivent être supportées par les éléments maçonnés. |
---|---|
Porte-palières | Porte-battantes un vantail au ras du sol, selon DIN 18090, tôle électro-zinguée, prêtes pour peinture par le commettant. |
Cabine |
|
Contrepoids | Sans |
Moteur |
|
Électrotechnique |
|
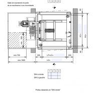
MOTEUR EN BAS À CÔTÉ DE LA GAINE : TYPE 300.15/45F
- Pylône : Pylône en acier galvanisé, pour installation dans une gaine par le commettant.
- Porte-palières : Porte-battantes à un vantail DIN 18090, au ras de sol, tôle électro-zinguée, prêtes pour peinture.
- Cabine : Cabine insérée, tôle électro-zinguée, prête pour peinture, avec parachute à galets, éclairage de cabine et prise de courant protégée sur le plafond de la cabine.
- Treuil : Transmission par vis sans fin avec tambour à câbles, équipé d'un frein de secours et volant, positionné en bas à côté de la gaine (latérale).
- Commande : Commande à micro-processeur exécutée comme commande d'appel et d'envoi. Installation électrique pré-câblée pour un montage simple et raccordée ensemble par un système enfichable.
- Porte-machinerie : Par le commettant.
BKG Type : 300.15/45F
Pylône | Prolongement du pylône galvanisé, guide en T 50/50/5. Le pylône est à considérer comme support ; toutes les contraintes de l'élévateur doivent être supportées par les éléments maçonnés. |
---|---|
Porte-palières | Porte-battantes un vantail au ras du sol, selon DIN 18090, tôle électro-zinguée, prêtes pour peinture par le commettant. |
Cabine |
|
Contrepoids | Sans |
Moteur |
|
Électrotechnique |
|
Autres produits du vendeur pour : Monte-charge

Voir le produit

Monte-chariots avec des portes battantes au ras du sol - cmc monte charges - charge de 100kg / 300kg
Voir le produit

Voir le produit
Produits similaires dans la catégorie qui peuvent vous intéresser

Prix sur demande
Vendu et fabriqué par : CMC MONTE CHARGES
MOTEUR EN BAS A COTE LA GAINE : TYPE 1000.10/60P - Pylône : Pylône en acier galvanisé, pylône autoportant. - Porte - palières : Porte - battantes à deux vantaux DIN 18090, au ras de sol, tôle électro - zingué, prêtes pour peinture, - Cabine : Avec cabine insérée, tôle électro - z
Voir le produit

Prix sur demande
Vendu et fabriqué par : CMC MONTE CHARGES
MOTEUR EN HAUT DANS LA GAINE : - TYPE 1000.15/50 (1000 Kg) - MOTEUR EN HAUT DANS LA GAINE : - TYPE 1000.15/50 (PYLÔNE AUTOPORTEUR !) - Pylône : - Pylône en acier galvanisé à chaud, pour installation dans une gaine par le commettant (la gaine maçonnée n'est pas obligatoire). - Porte - pa
Voir le produit

Prix sur demande
Vendu et fabriqué par : CMC MONTE CHARGES
MONTE - CHARGE AUTOPORTEUR DE 500 KG - MOTEUR EN HAUT DANS LA GAINE : Type 500.10/49 (Pylône autoporteur !) - Pylône : - Pylône en acier galvanisé à chaud - Installation possible dans une gaine par le commettant (la gaine maçonnée n'est pas obligatoire) - Porte - palières : - Porte - b
Voir le produit

Prix sur demande
Vendu et fabriqué par : CMC MONTE CHARGES
MOTEUR EN HAUT DANS LA GAINE : TYPE 2000.15/90 (PYLÔNE AUTOPORTEUR !) - Pylône : - Pylône en acier galvanisé à chaud, pour installation dans une gaine par le commettant (la gaine maçonnée n'est pas obligatoire). - Guide en T 90 B. - Fixation au plancher, percement de plafond et plafond.
Voir le produit

Prix sur demande
Vendu et fabriqué par : CMC MONTE CHARGES
MONTE - CHARGE AUTOPORTEUR DE 500 KG - MOTEUR EN BAS À CÔTÉ DE LA GAINE : TYPE 500.15/59 (PYLÔNE AUTOPORTEUR !) - Pylône : - Pylône en acier galvanisé à chaud, pour installation dans une gaine par le commettant (la gaine maçonnée n'est pas obligatoire). - Porte - palières : - Porte -
Voir le produit

Prix sur demande
Vendu et fabriqué par : CMC MONTE CHARGES
- MOTEUR EN BAS À CÔTÉ DE LA GAINE : - Type 1000.10/60 (1000 Kg) - Pylône : - Pylône en acier galvanisé à chaud, pour installation dans une gaine par le commettant (la gaine maçonnée n'est pas obligatoire). - Porte - palières : - Porte - battantes à un vantail ou deux vantaux DIN 180
Voir le produit

Prix sur demande
Vendu et fabriqué par : CMC MONTE CHARGES
MOTEUR EN HAUT DANS LA GAINE : TYPE 1000.15/50 P - Pylône : - Pylône en acier galvanisé, autoportant. - Guide en T 82 B, galvanisé à chaud. - Fixation au plancher, au plafond et percement de plafond. - Porte - palières : - Porte - battantes à deux vantaux DIN 18090, au ras du sol, en tÃ
Voir le produit

Prix sur demande
Vendu et fabriqué par : CMC MONTE CHARGES
- MOTEUR EN HAUT DANS LA GAINE : TYPE 1500.15/90 (PYLÔNE AUTOPORTEUR !) - Pylône : - Pylône en acier galvanisé à chaud, pour installation dans une gaine par le commettant (la gaine maçonnée n'est pas obligatoire). - Porte - palières : - Porte - battantes à deux vantaux DIN 18090, au ras
Voir le produit
Obtenez des devis
pour plusieurs produits à la fois
1
Vous décrivez rapidement votre besoin de matériel
2
Nous sélectionnons les meilleurs fournisseurs pour votre projet
3
Vous recevez des premières propositions sous 48h
Quel type de monte-charge recherchez-vous ?
CMC MONTE CHARGES
France, VENASQUE, (84) Provence-Alpes-Côte-d'Azur
Grossiste monte charges, CMC Monte Charges Grossiste et installateur de monte charge pour tous services...
Retrouvez nos conseils pour choisir
votre
monte-charge

Le conseil de l'expert
Comment choisir un monte-charge ?
Découvrir

Top 5 des produits dans la catégorie


Prix sur demande
Vendu et fabriqué par : EdmoLift Solutions
Le monte - charge d?EdmoLift est utilisé pour gérer les charges lourdes entre deux ou plusieurs étages. Grâce à une construction robuste, la hauteur de levage peut atteindre jusqu?à 12 mètres et il n?est pas nécessaire d'installer le monte - charge dans une fosse. - Le monte - charge peut Ã
Voir le produit


Prix sur demande
Vendu et fabriqué par : DWS
Vendeur certifié
Description - L'accessibilité et la circulation en toute sécurité, large gamme dans le domaine de l'élévation. - Ouverture des trappes par un berceau implanté sur le plateau. - Capacité : 200 Kg à 1200 Kg de charge utile - Hauteur de lévée : Jusqu'à 6.5 m - Vitesse de levée : 8 à 1
Voir le produit

Prix sur demande
Vendu et fabriqué par : HAMON
MONTE - CHARGES EN KIT - MONTE - CHARGES EN KIT 150KG - 300KG - Notre gamme de monte - charges en kit 150/300 kg, conforme à la directive machine 2006/42 CE, est idéalement conçue pour les petites charges (Bacs, Cartons, Petites palettes, Rolls...). - Nos monte - charges en kit sont livrés a
Voir le produit


Prix sur demande
Vendu et fabriqué par : DWS
Vendeur certifié
Description - L'accessibilité et la circulation en toute sécurité, large gamme dans le domaine de l'élévation. - Cage grillagée en maille 80 x 10 avec peinture epoxy. - Porte rapide en partie basse avec commande par boite à boutons et portillon en partie haute. - EUP type EC 03 - Charge
Voir le produit

Prix sur demande
Vendu et fabriqué par : HAMON
MONTE - CHARGES 150KG - 300KG - Notre gamme de monte - charges industriels 150kg / 300kg est spécialement conçue pour la manutention de charges légères (cartons, colis, palettes). Ils permettent de répondre aux problématiques de transport vertical de charges avec changement de niveaux. - Di
Voir le produit