Monte-charge élévateur accompagné Type 500.15/49 P - CMC Monte Charges - Charge 500 kg - Pylône autoportant - Cabine sécurisée
Obtenir un devis / prix
Prix et détails sur demande
Vendu
et fabriqué par CMC MONTE CHARGES
En savoir plus
Description
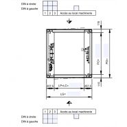
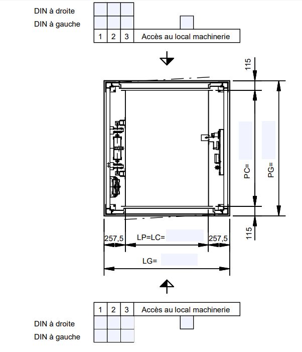
MOTEUR EN HAUT DANS LA GAINE : TYPE 500.15/49 P
Pylône :
- Pylône en acier galvanisé, autoportant.
- Guide en T 82 B.
- Fixation au plancher, percement de plafond et plafond.
Porte-palières :
- Porte-battantes à un vantail au ras du sol, selon DIN 18090, en tôle d'acier galvanisé à chaud.
- Porte-machinerie à un vantail, âme simple, avec serrure de sûreté en tôle d'acier galvanisé à chaud.
Cabine :
- Capacité : 500 kg.
- Suspension cabine 2:1 avec 2 x chaînes à rouleaux 5/8" x 3/8".
- Parachute à galets pour sécurité contre la chute.
- Construction en tôle d'acier galvanisé à chaud.
- Plancher en tôle galvanisé avec tôle d'aluminium gaufrée.
- Éclairage de cabine avec éclairage de secours.
- Fermeture de cabine par réseau optique.
- Commande intérieure activée par interrupteur de clé.
- Bouton d'alarme avec ronfleur d'alarme.
Contrepoids :
- Poids tendeur.
Moteur :
- Type FG avec volant.
- Vitesse : 0,15 m/s.
- Transmission par vis sans fin.
- Roue crantée Ø 151,0.
- Puissance moteur : 3,00 kW.
- Protection moteur IP 20.
- Double circuit de frein.
Electrotechnique :
- Interrupteur principal tripolaire à clé.
- Surveillance de temps de parcours.
- Signal d'arrivée, blocage de départ.
- Niveau de stationnement librement éligible.
- Tension de manœuvre : 24V AC.
- Système de diagnostic.
- Indicateur de position, appel entendu.
- Indicateur d'occupé, indicateur de panne.
- Interrupteurs d'appel et d'envoi, interrupteurs des transmetteurs d'ordres.
- Tableau de commande exécuté comme SPS-commande dans une armoire.
- Interrupteur principal quadripolaire à clé.
Treuil :
- Transmission par vis sans fin avec roues dentées.
- Équipé d'un frein de secours et volant, positionné au-dessus de la gaine.
Installation électrique :
- Pré-câblée pour un montage simple.
- Raccordement par système enfichable.
Autres produits du vendeur pour : Monte-charge

Voir le produit

Monte-chariots avec des portes battantes au ras du sol - cmc monte charges - charge de 100kg / 300kg
Voir le produit

Voir le produit
Produits similaires dans la catégorie qui peuvent vous intéresser

Prix sur demande
Vendu et fabriqué par : CMC MONTE CHARGES
MOTEUR EN BAS A COTE LA GAINE : TYPE 1000.10/60P - Pylône : Pylône en acier galvanisé, pylône autoportant. - Porte - palières : Porte - battantes à deux vantaux DIN 18090, au ras de sol, tôle électro - zingué, prêtes pour peinture, - Cabine : Avec cabine insérée, tôle électro - z
Voir le produit

Prix sur demande
Vendu et fabriqué par : CMC MONTE CHARGES
MONTE - CHARGE AUTOPORTEUR DE 500 KG - MOTEUR EN HAUT DANS LA GAINE : Type 500.10/49 (Pylône autoporteur !) - Pylône : - Pylône en acier galvanisé à chaud - Installation possible dans une gaine par le commettant (la gaine maçonnée n'est pas obligatoire) - Porte - palières : - Porte - b
Voir le produit

Prix sur demande
Vendu et fabriqué par : CMC MONTE CHARGES
MOTEUR EN BAS À CÔTÉ DE LA GAINE : TYPE 500.15/59 P - Pylône - Pylône en acier galvanisé, autoportant - Guide en T 82 B - Galvanisé à chaud - Fixé au plancher, avec percement de plafond et plafond - Porte - palières - Porte - battantes à un vantail au ras du sol - Conformes à la
Voir le produit

Prix sur demande
Vendu et fabriqué par : CMC MONTE CHARGES
MOTEUR EN HAUT DANS LA GAINE : TYPE 1000.15/50 P - Pylône : - Pylône en acier galvanisé, autoportant. - Guide en T 82 B, galvanisé à chaud. - Fixation au plancher, au plafond et percement de plafond. - Porte - palières : - Porte - battantes à deux vantaux DIN 18090, au ras du sol, en tÃ
Voir le produit

Prix sur demande
Vendu et fabriqué par : CMC MONTE CHARGES
MOTEUR EN HAUT DANS LA GAINE : - TYPE 1000.15/50 (1000 Kg) - MOTEUR EN HAUT DANS LA GAINE : - TYPE 1000.15/50 (PYLÔNE AUTOPORTEUR !) - Pylône : - Pylône en acier galvanisé à chaud, pour installation dans une gaine par le commettant (la gaine maçonnée n'est pas obligatoire). - Porte - pa
Voir le produit

Prix sur demande
Vendu et fabriqué par : CMC MONTE CHARGES
MOTEUR EN HAUT DANS LA GAINE : TYPE 2000.15/90 (PYLÔNE AUTOPORTEUR !) - Pylône : - Pylône en acier galvanisé à chaud, pour installation dans une gaine par le commettant (la gaine maçonnée n'est pas obligatoire). - Guide en T 90 B. - Fixation au plancher, percement de plafond et plafond.
Voir le produit

Prix sur demande
Vendu et fabriqué par : CMC MONTE CHARGES
- MOTEUR EN BAS À CÔTÉ DE LA GAINE : - Type 1000.10/60 (1000 Kg) - Pylône : - Pylône en acier galvanisé à chaud, pour installation dans une gaine par le commettant (la gaine maçonnée n'est pas obligatoire). - Porte - palières : - Porte - battantes à un vantail ou deux vantaux DIN 180
Voir le produit

Prix sur demande
Vendu et fabriqué par : CMC MONTE CHARGES
- MOTEUR EN HAUT DANS LA GAINE : TYPE 1500.15/90 (PYLÔNE AUTOPORTEUR !) - Pylône : - Pylône en acier galvanisé à chaud, pour installation dans une gaine par le commettant (la gaine maçonnée n'est pas obligatoire). - Porte - palières : - Porte - battantes à deux vantaux DIN 18090, au ras
Voir le produit

Prix sur demande
Vendu et fabriqué par : CMC MONTE CHARGES
MONTE - CHARGE AUTOPORTEUR DE 500 KG - MOTEUR EN BAS À CÔTÉ DE LA GAINE : TYPE 500.15/59 (PYLÔNE AUTOPORTEUR !) - Pylône : - Pylône en acier galvanisé à chaud, pour installation dans une gaine par le commettant (la gaine maçonnée n'est pas obligatoire). - Porte - palières : - Porte -
Voir le produit

Prix sur demande
Vendu et fabriqué par : CMC MONTE CHARGES
MONTE - CHARGE NON AUTOPORTEUR DE 500 KG - MOTEUR EN HAUT DANS LA GAINE : TYPE 500.15/44F - (PYLÔNE NON AUTOPORTEUR) - Pylône : - Pylône en acier galvanisé, pour installation dans une gaine par le commettant (gaine maçonnée obligatoire). - Prolongement du pylône galvanisé. - Guide en T
Voir le produit
Obtenez des devis
pour plusieurs produits à la fois
1
Vous décrivez rapidement votre besoin de matériel
2
Nous sélectionnons les meilleurs fournisseurs pour votre projet
3
Vous recevez des premières propositions sous 48h
Quel type de monte-charge recherchez-vous ?
CMC MONTE CHARGES
France, VENASQUE, (84) Provence-Alpes-Côte-d'Azur
Grossiste monte charges, CMC Monte Charges Grossiste et installateur de monte charge pour tous services...
Retrouvez nos conseils pour choisir
votre
monte-charge

Le conseil de l'expert
Comment choisir un monte-charge ?
Découvrir

Top 5 des produits dans la catégorie


Prix sur demande
Vendu et fabriqué par : EdmoLift Solutions
Le monte - charge d?EdmoLift est utilisé pour gérer les charges lourdes entre deux ou plusieurs étages. Grâce à une construction robuste, la hauteur de levage peut atteindre jusqu?à 12 mètres et il n?est pas nécessaire d'installer le monte - charge dans une fosse. - Le monte - charge peut Ã
Voir le produit


Prix sur demande
Vendu et fabriqué par : DWS
Vendeur certifié
Description - L'accessibilité et la circulation en toute sécurité, large gamme dans le domaine de l'élévation. - Ouverture des trappes par un berceau implanté sur le plateau. - Capacité : 200 Kg à 1200 Kg de charge utile - Hauteur de lévée : Jusqu'à 6.5 m - Vitesse de levée : 8 à 1
Voir le produit

Prix sur demande
Vendu et fabriqué par : HAMON
MONTE - CHARGES EN KIT - MONTE - CHARGES EN KIT 150KG - 300KG - Notre gamme de monte - charges en kit 150/300 kg, conforme à la directive machine 2006/42 CE, est idéalement conçue pour les petites charges (Bacs, Cartons, Petites palettes, Rolls...). - Nos monte - charges en kit sont livrés a
Voir le produit


Prix sur demande
Vendu et fabriqué par : DWS
Vendeur certifié
Description - L'accessibilité et la circulation en toute sécurité, large gamme dans le domaine de l'élévation. - Cage grillagée en maille 80 x 10 avec peinture epoxy. - Porte rapide en partie basse avec commande par boite à boutons et portillon en partie haute. - EUP type EC 03 - Charge
Voir le produit

Prix sur demande
Vendu et fabriqué par : HAMON
MONTE - CHARGES 150KG - 300KG - Notre gamme de monte - charges industriels 150kg / 300kg est spécialement conçue pour la manutention de charges légères (cartons, colis, palettes). Ils permettent de répondre aux problématiques de transport vertical de charges avec changement de niveaux. - Di
Voir le produit